Three bedroom townhouse with large roof terrace
Description
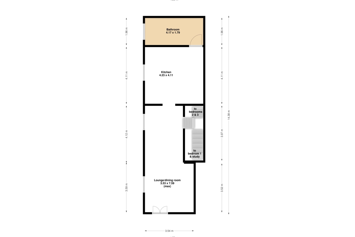
Special Townhouses Occupying a bright corner plot within the traditional Andalusian town of Arenas del Rey this large family home offers 3 double bedrooms plus a large study (occasional fourth bedroom) off which is a large open sun terrace with great country views.On the ground floor there is a spacious lounge/dining room with feature fireplace and wood burning stove, a tradional kitchen and a family bathroom which is modern and fully tiled. The first floor provides a large double bedroom to the front of the property accessed by a small stairway which is bright and is double aspect and also off this stairway is the large study (fourth bedroom) which gives access to the large sun terrace which has country views and makes a great social space or quiet retreat. There are two further double bedrooms towards the rear of the property accessed by a separate stairway, both bright and one which is also dual aspect.
The property is connected to all mains services and has all current legal paperwork in place. It is conveniently situated close to shops, bars and within a short walk of the town's municipal swimming pool and sports fascilities. The lakeside is just a 5 minute drive away.
